成約済 甲南山手 ワコーレ神戸森北501号室
JR甲南山手駅より徒歩6分の立地にあるワコーレ神戸森北501号室のルーフバルコニーからは六甲山が見えます。
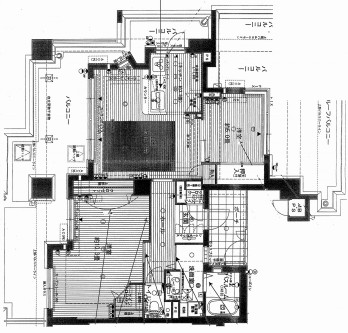
3面バルコニーで風通しや採光が取れ、主寝室は余裕の10.3帖の広さです。
学校区は人気の本山第3小学校区になります。
3面バルコニーで風通しや採光が取れ、主寝室は余裕の10.3帖の広さです。
学校区は人気の本山第3小学校区になります。
募集要項
- マンション名
- ワコーレ神戸森北 501号室
- 賃料
- 月額16万円
- 管理費
- 礼金
- 3ヶ月
- 敷金
- 1ヶ月
- 物件
- 神戸市東灘区森北町3-3-14
- 交通状況
- 東海道本線甲南山手駅
駅より徒歩6分
- 面積
- 73.27㎡
- 建築構造材質等
- RC
地上7階5階部分
- 築年月
- 平成17年1月
- 間取
- 2LDK
- バルコニーの方向
- 南
- 建物賃貸借
- 定期借家契約3年
- 駐車場
- セット契約 №14 月額20,000円
- 保険義務
- 有
- 保険料
- 20,000円/2年
- 設備・条件
- システムキッチン 食器洗浄乾燥機 IHクッキングヒーター 洗浄機能付便座 浴室乾燥機 床暖房 追焚機能 自動ロック TVモニタ付インターホン ルーフバルコニー 3面バルコニー 宅配ボックス 屋内駐車場
- 現況
- 賃貸中
- 入居可能予定
- 2015年2月上旬
- 備考
- 備考補足






































